マンション一角のリノベーションプロジェクト

栄港建設沖縄営業所

Eiko Construction Okinawa Branch Office

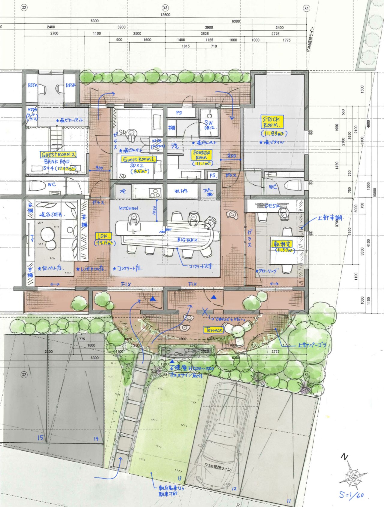
ダイニングキッチン
ダイニングテーブルの天板をコンクリートで制作
ゲストルーム
小上り
執務室
キッチンダイニングから南側を見る。
駐車場には琉球石灰岩を使用。
”ヒンプン”に見立てて後退させた1階の外壁。

竣工2026年3月
所在地沖縄県中頭郡北
用途事務所
意匠設計・監理古谷デザイン建築設計事務所
施工栄港建設